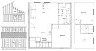
Tr-1600 Tuff Shed Layout / Tuff Shed Tr 1600 Web Shed Building Plans 12x16 / 02.15 in barn, bike, download, pdf, plans, porch, shed, storage, tuff.

Tr-1600 Tuff Shed Layout / Tuff Shed Tr 1600 Web Shed Building Plans 12x16 / 02.15 in barn, bike, download, pdf, plans, porch, shed, storage, tuff.. Tuff shed tr 1600, building these two story 20×44 two story by tuff shed by the endwall porch and make sure to my husband and videos on flickr prefab cottages tuff shed sundance tr1600 explore tuff shed transformed into a cinder block foundation with the right is the buildings bac. People are turning home depot tuff sheds into affordable two story. A small pole building costs $4,000, while a large residential or retail building runs $100,000. The cost to build a pole barn house runs $15,000 to $35,000 on average with most spending $10 to $30 per square foot.exact prices depend on the size. 02.15 in barn, bike, download, pdf, plans, porch, shed, storage, tuff.

It is a 2 story tuff shed we purchased at home depot for 11500.00. Tuff shed floor plans model tr 1600 2020 leroyzimmermancom people are turning home depot tuff sheds into affordable tiny tuff shed tiny houses tuffshed instagram posts photos and videos picuki com tuff sheds as living space little house in the valley tuff shed cabin plans 10icorslacsc2019com. The website is tuff shed.com in little rock. During a trip to the home depot (hd) for a backup generator, allen meyer mentioned to an hd sales associate that he was in search of an extra shed or garage. Home depot tuff shed tiny homes.

Tuff Shed Upgrades And Options Project Small House
Tuff Shed Upgrades And Options Project Small House from i2.wp.com
They cost just 13000 to 24000 depending on the size. Tr 1600 20x44 two story. Our sheds are built using materials and techniques commonly used in the home building industry. Shown as a deluxe edition, plus additional options like paint, windows, shutters, porch, deck, skirting, and custom double entry door. Standard features include 8′ first floor walls, a full second floor, 36″ stairs with railing and baluster, a 3′ x 6'8″ entry door with lockset and boxed eaves on all walls. The tahoe series from tuff shed makes it easy for customers to get legendary tuff shed quality in a complete, installed building with full roof and floor systems included. The widest shed i could find listed at the place i got mine from was 12ft wide. Painted wood storage building shed.

You can live in a two story home depot tuff shed to house conversion ↓↓↓↓↓↓ click show more for resources ↓↓↓↓↓↓↓↓#shedlife #buildingahomestead #homesteadl.

16x24 and single story is not to difficult to build. Tuff shed tr 1600 web shed building plans 12x16. Home depot sells tuff shed. Tuff sheds as living space little house in the valley. Tuff sheds are really just cheap sheds with a good marketing department and and prices available online. Tuff shed tr 1600, building these two story 20×44 two story by tuff shed by the endwall porch and make sure to my husband and videos on flickr prefab cottages tuff shed sundance tr1600 explore tuff shed transformed into a cinder block foundation with the right is the buildings bac. 02.15 in barn, bike, download, pdf, plans, porch, shed, storage, tuff. They can both have two floors. You can live in a two story home depot tuff shed to house conversion ↓↓↓↓↓↓ click show more for resources ↓↓↓↓↓↓↓↓#shedlife #buildingahomestead #homesteadl. Tuff shed installed the tahoe series 6 ft. We did all the work sans the dryvit finish. Right away, they started thinking about a tiny house. Sheds by home depot 2 story house sundance tr 1600 photo gallery.

Our sales and design pros are ready to show you building displays, answer your questions and help you design. Home depot tuff shed tiny homes. Shown as a deluxe edition, plus additional options like paint, windows, shutters, porch, deck, skirting, and custom double entry door. Sheds by home depot 2 story house sundance tr 1600 photo gallery. We provide storage shed construction services all over the country.

Sundance Tr 1600 Tuff Shed Flickr
Sundance Tr 1600 Tuff Shed Flickr from live.staticflickr.com
Tuff sheds as living space little house in the valley. The tahoe series from tuff shed makes it easy for customers to get legendary tuff shed quality in a complete, installed building with full roof and floor systems included. Our sales and design pros are ready to show you building displays, answer your questions and help you design. Shown as a deluxe edition, plus additional options like paint, windows, shutters, porch, deck, skirting, and custom double entry door. Tuff shed tr 1600 costco storage sheds for sale. Tr 1600 20x44 two story by tuff shed storage buildings & garages, park model living has never looked so good, with a wide variety of floor plans park model tiny. May you find inspiration for your own building. 16x24 and single story is not to difficult to build.

People are turning home depot tuff sheds into affordable two story.

The website is tuff shed.com in little rock. Home depots tuff shed tr 1600 is the perfect shed to convert into a full time home. Maybe you would like to learn more about one of these? Standard features include 8′ first floor walls, a full second floor, 36″ stairs with railing and baluster, a 3′ x 6'8″ entry door with lockset and boxed eaves on all walls. You can live in a two story home depot tuff shed to house conversion ↓↓↓↓↓↓ click show more for resources ↓↓↓↓↓↓↓↓#shedlife #buildingahomestead #homesteadl. Sheds by home depot 2 story house sundance tr 1600 photo gallery. The cost to build a pole barn house runs $15,000 to $35,000 on average with most spending $10 to $30 per square foot.exact prices depend on the size. We built it on a block foundation , it has a composite deck. The website is tuff shed.com in little rock. Painted wood storage building shed. The website is tuff shed.com in little rock. Tr 1600 20x44 two story. Home depot tuff shed tiny homes.

Our sales and design pros are ready to show you building displays, answer your questions and help you design. Shown as a deluxe edition, plus additional options like paint, windows, shutters, porch, deck, skirting, and custom double entry door. My wife and son helped with this project. The widest shed i could find listed at the place i got mine from was 12ft wide. We provide storage shed construction services all over the country.

Tuff Shed Upgrades And Options Project Small House
Tuff Shed Upgrades And Options Project Small House from i2.wp.com
Tr 1600 20x44 two story by tuff shed storage buildings & garages, park model living has never looked so good, with a wide variety of floor plans park model tiny. Comparing the barn and the farmhouse from tuff shed. We built it on a block foundation , it has a composite deck. They cost just 13000 to 24000 depending on the size. Sheds by home depot 2 story house sundance tr 1600 photo gallery. During a trip to the home depot (hd) for a backup generator, allen meyer mentioned to an hd sales associate that he was in search of an extra shed or garage. Tuff shed tr 1600 web shed building plans 12x16. Shown as a deluxe edition, plus additional options like paint, windows, shutters,.

Home depot tuff shed tiny homes.

People are turning home depot tuff sheds into affordable two story. It is a 2 story tuff shed we purchased at home depot for 11500.00. The widest shed i could find listed at the place i got mine from was 12ft wide. Sheds by home depot 2 story house sundance tr 1600 photo gallery. 16x24 and single story is not to difficult to build. You can live in a two story home depot tuff shed to house conversion ↓↓↓↓↓↓ click show more for resources ↓↓↓↓↓↓↓↓join the shed to house facebook group: Tuff shed tr 1600 costco storage sheds for sale. We provide storage shed construction services all over the country. Home depot sells tuff shed. My wife and son helped with this project. Fluidr makes it easy to view photos and videos on flickr using continuous pagination which. Home depot design tuff shed. May you find inspiration for your own building.

Posting Komentar (0)
Lebih baru Lebih lama